Maarian VPK Paloasemahanke Turun Kastussa. Uusi paloasema on noin 1150 neliömetriä ja rakennus pitää sisällään muun muassa pesuhallin, kalustohallin, miehistön tilat; kuten pukuhuoneet sekä pesu- ja saunatilat, joiden lisäksi tilaa löytyy myös kouluttamiseen, oleskeluun ja kokoustamiseen.
Projekti aloitettiin 08/2024.

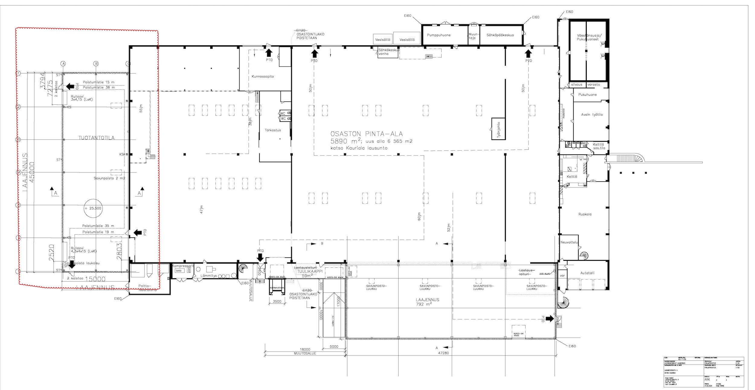
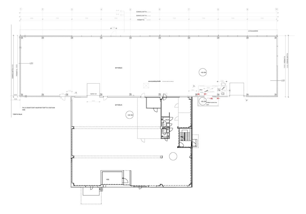
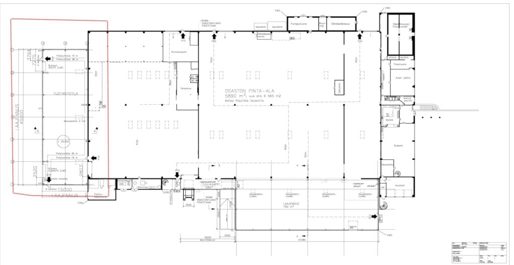
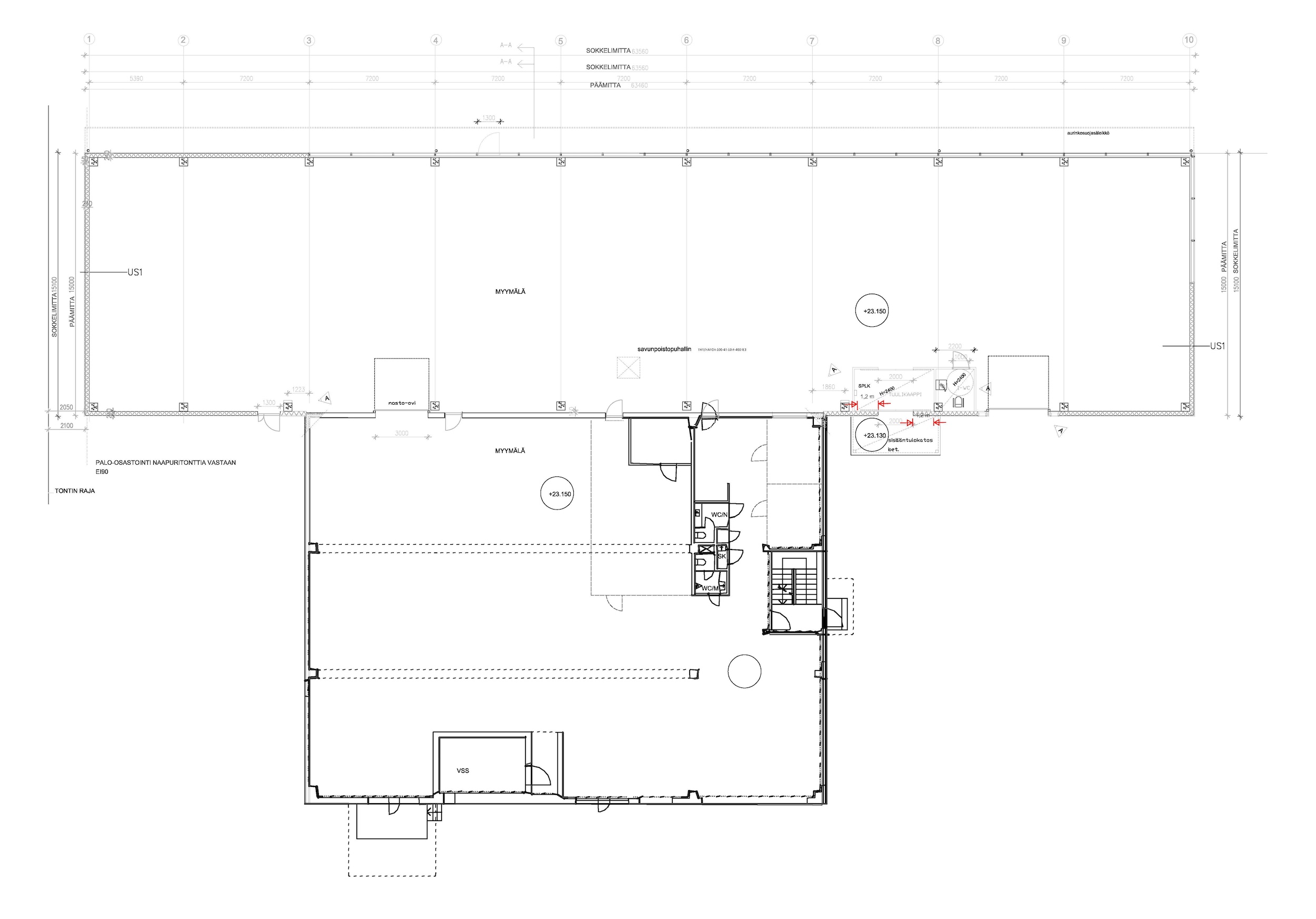
Laajennusosa nykyiselle rakennukselle, Helkama Bica, Turku. Betonirunkoinen, paroc-seinällä ja paalutetulla betonilaatalla oleva myymälä (tuotantorakennus), koko 700 m2.
Laajennus toimii yhtenä kokonaisuutena nykyisten tuotantotilojen kanssa tekniikoineen. Urakan yhteydessä koko rakennukseen (9000 m2) asennettiin paloilmoitinjärjestelmä.
Projekti aloitettiin 04/2024.
Toimimme projektinjohdossa laajennustyössä yrityksen nykyiselle myymälärakennukselle. Betonirunkoinen, paroc-seinällä ja paalutetulla betonilaatalla oleva myymälä (tuotantorakennus), jossa paljon ikkunapinta-alaa, epoksilattiat sekä nykyaikainen talotekniikka.
Samassa yhteydessä käytössä ollut myymäläosa saneerattiin pienkonekorjaamoksi ja julkisivu uusittiin. Laajennusosan koko on 1000 m2. Projekti aloitettiin 04/2024.
Tehtaanpihan Wauhti on Turku Asunnot Oy:lle keväällä 2024 valmistuva asuntokohde Turun keskustassa. Kerrostalo pitää sisällään 55 asuntoa yksiöistä kolmioihin.



Ketarantien parkki huolehtii Tehtaanpihan pysäköintiratkaisuista puolilämpimässä pysäköintihallissa, joka on rakennettu pihakannen alapuolisiin tiloihin katutasolle. Projektin ensimmäinen vaihe valmistui kesällä 2023.



Tehtaanpihan Woima on Turku Asunnot Oy:lle kesällä 2023 valmistunut asuntokohde Turun keskustassa. Kerrostalo pitää sisällään 63 asuntoa yksiöistä kolmioihin.


